
KIT Casa
A forma mais rápida e econômica de alcançar o sonho da casa própria!
A solução para quem busca construir uma casa com uma fachada moderna e sem gastar muito, Kit Casa 01. Uma residência de 63,1 m² de 2 quartos, 1 banheiro social, sala e cozinha conjugada, com uma varanda frontal e uma lavanderia nos fundos e o melhor: Pode-se ampliar a casa para os fundos quando quiser! Pois essa planta foi pensada para quem deseja ampliação de uma futura suíte.




MODELOS DE CASAS DISPONÍVEIS
kit casa 1
kit casa 2




Você procura uma casa compacta e com suíte? Apresentamos o Kit Casa 02! Uma residência ideal para sua família. Uma residência de 61,48 m² de 1 quarto, 1 suíte, 1 banheiro social, sala e cozinha conjugada, com uma varanda frontal e uma lavanderia nos fundos. Escolhe qual a fachada que mais lhe agrada!
kit casa 3
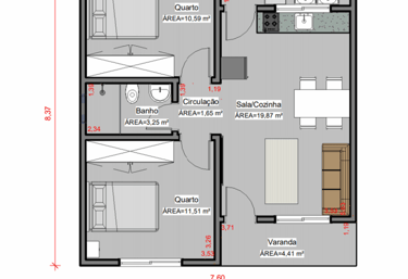
Para você que possui uma família maior, apresentamos o Kit Casa 03. Uma residência de 73,95m² de 2 quartos, 1 suíte, 1 banheiro social, sala e cozinha conjugada, com uma varanda frontal e uma lavanderia nos fundos.




kit casa 4
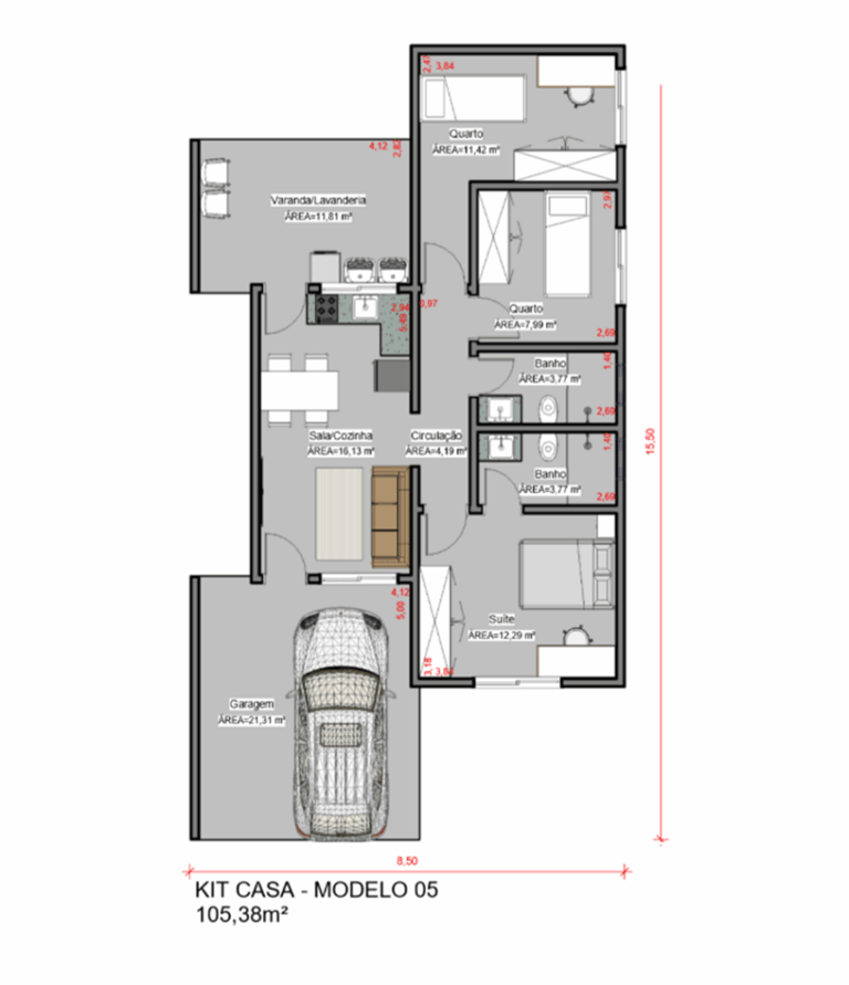
O kit casa 04 em uma versão expandida! A versão final e ideal para a família desfrutar de todo o conforto e comodidade. Uma residência de 105,38 m² de 2 quartos, 1 suíte, 1 banheiro social, sala e cozinha conjugada, com uma garagem e uma lavanderia com varanda nos fundos.






